The Ayios Loukas Church Restoration Project Rapport
Historical Research
The Church of St. Luke was built in the time of Archbishop Philotheos in 1758. The North and west doorways are in mediaeval style and doubtless come from some earlier building. The southern portion of the iconostasis is contemporary with the building. Though it contains icons of an earlier date the most interesting being an early sixteenth- century icon of the annunciation in the Italian manner with a donor, his wife and so yet latter wearing a black tunic and red hose, while round his waist is a belt with a short sword attached to it. Ob the north Walla of the church hangs a large rood cross, dated 1692.
In the gallery are a collection of icons which must all have come from a former church. Two of them are of great interest and probably date from fifteenth century.
These icons are painted on both sides, and obviously were mounted have long since disappeared. Both show the same scenes, on one side the Crucifixion and on the reverse the virgin. The larger of the icons is the better preserved, and the drawing of the figures grouped at the foot of the cross is by a skilled hand. In each case the semi-halo surrounding the Virgin’s head is gilded gesso.
Two other icons which lie here are of interest: a large panel of St. Barnabas with a donor priest who wears a cope ‘’Chequer- board’’ pattern and black skullcap. This İcon probably dates from the first half of the sixteenth century. The Second is later, and Shows the Virgin with upraised hands, and at the foot four donors, a man, his wife, and a son and daughter. The father wears a curious teen dead-dress reminiscent of Turkish turban, while the ladies wear white hooded cloaks with green dresses underneath.
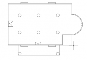
St.Ayios Loukas Church Base Plan

The Church had big Damaged during the War. Before 1985, It was a ruin. There Wasn’t any Column. There was extensive damage on the roof. Wall stones covered with moss. It had a forecourt but According to some Sources Forecourt destroyed during the war in 1974.
The Church was restored by HAS-DER with North Cyprus Republic Department of Antiquities in 1885-1986.
Roof was repaired, column was repaired but Forecourt Didn’t repaired.
Old Pictures During the restoration on 1985-1986


St. Ayios Loukas church South Facade during Restoration on 1985

Sources
- HAS-DER Association library
- Gunnis Historic Cyprus 1936
Thanks
Has-DER Associations ( Halk Sanatları Dernegi)





